Dalreoch Farm

Enochdhu, Blairgowrie, Perthshire, PH10 7PF

Offers Over £500,000

20 acres

Bedroom Count icon 4

Reception Count icon 2

Bathroom Count icon 2

  • 1 reception rooms, 4 bedrooms
  • Charming traditional farmhouse with flexible accommodation
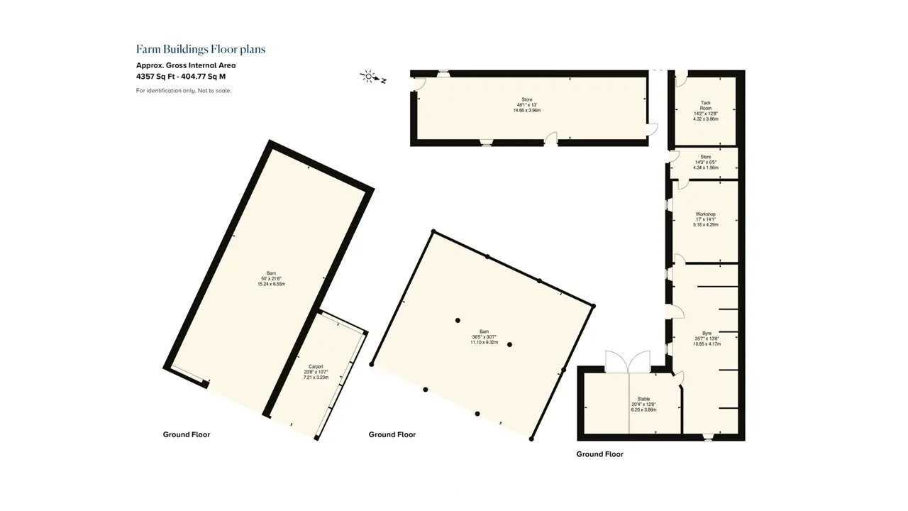
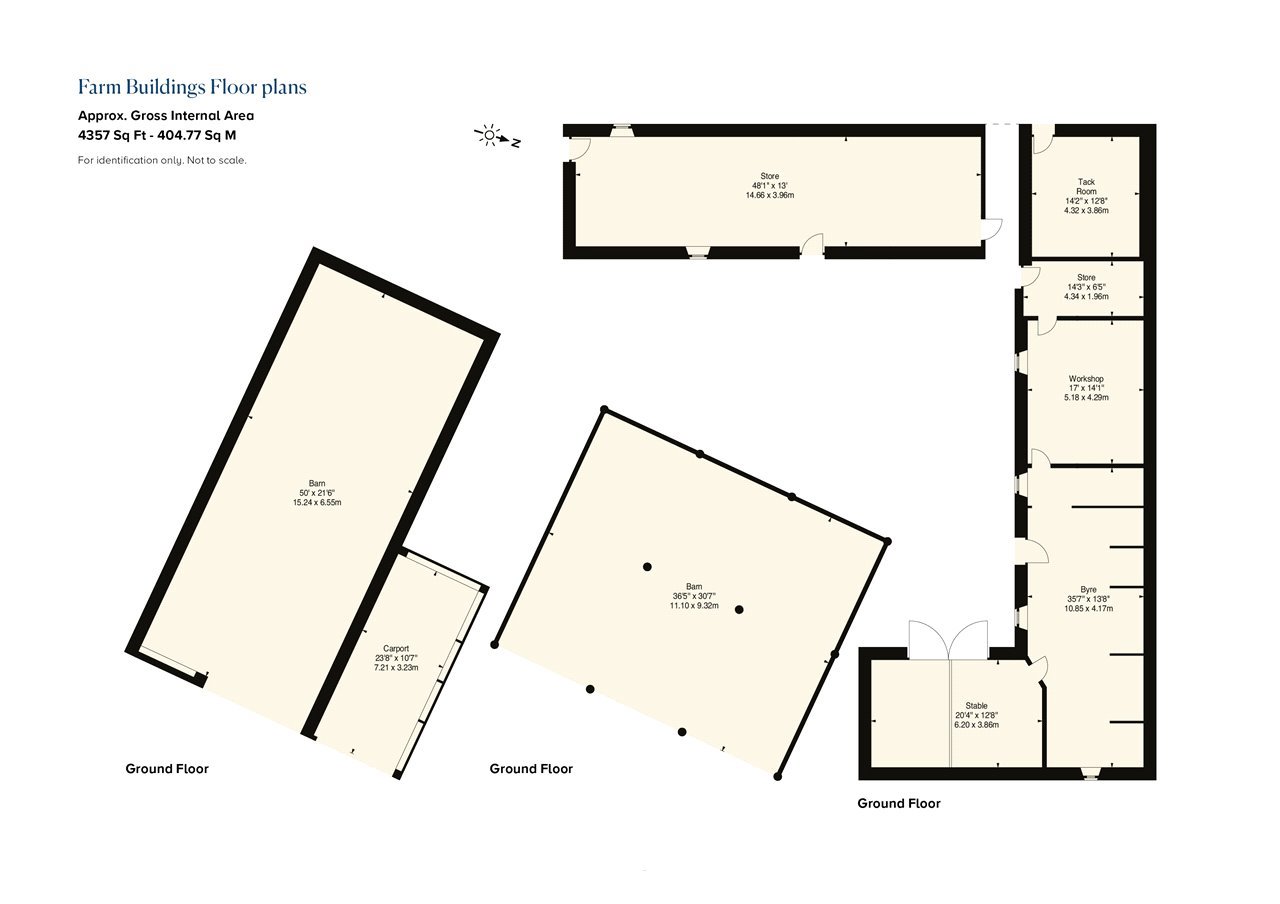
  • Excellent range of traditional outbuildings with super potential
  • Four practically sized paddocks extending to approximately 22 acres
  • Fantastic potential for equestrian use or as a productive smallholding
  • A superb position in Highland Perthshire close to Pitlochry and Blairgowrie

SituationDalreoch Farm lies just outside of the pretty village of Enochdhu in the county of Perthshire and enjoys a superb rural position with extensive views over the surrounding countryside and hills. The village of Kirkmichael is just 2.5 miles to the south and provides super day to day amenities including a village shop, church, primary school, and village hall. The popular town of Blairgowrie lies just 15 miles to the south east and provides comprehensive day to day facilities including secondary schooling, supermarkets, independent retailers, a medical centre and a lovely range of cafes and restaurants. Pitlochry lies 10 miles to the west and also provides excellent facilities as well as a popular theatre and a train station with excellent links north and south.The city of Perth is situated about 35 miles to the south and provides an excellent range of services and facilities including national retailers, theatre, concert hall, banks and railway station as well as the renowned Perth Racecourse at Scone Palace. Edinburgh and Glasgow can both be reached in about 2 hours by car, with their international airports and vibrant city amenities.Perthshire is renowned for its wealth of recreational opportunities on the doorstep. Dalreoch Farm sits right on the famous Cataran Trail and the surrounding hills and glens offer a wealth of walking and mountain biking routes. Winter sports can be enjoyed at Glenshee Ski Centre, which is just half an hour’s journey by car. For the golfer, there are numerous courses within a comfortable distance, including the world-renowned courses at Gleneagles.DescriptionDalreoch Farm extends in total to about 22 acres (9 Hectares) and is made up a single block of land, centred on an attractive traditional farmhouse, with a practical range of traditional outbuildings. Dalreoch Farm offers a superb opportunity to create a wonderful home and has tremendous scope for a multitude of uses. The outbuildings have potential to be modernised or developed, subject to the necessary planning consents, to provide ancillary accommodation or to continue in their current smallholding use. The land is ideal for grazing ponies or other livestock and allows a great opportunity to develop the properties equestrian potential.Method of SaleDalreoch Farm is offered for sale as a whole.Dalreoch FarmhouseDalreoch Farmhouse is a very pretty traditional farmhouse which sits within a well tended and mature garden with a lovely outlook over the surrounding countryside. The house has a stone exterior lying under a slate roof with sash and case windows. The house offers flexible accommodation with lovely reception spaces on the ground floor including the charming sitting room with its feature fireplace, a dining room and a traditional kitchen. At the rear of the house an extension provides a generous hall with a pantry and a study which could also be the 4th bedroom.Upstairs is a principal bedroom as well as two further double bedrooms and a family bathroom, Dalreoch Farmhouse has ample accommodation making it ideal for family life as well as having ample room to hosts and entertain guests. The rooms are light and bright and all benefit from lovely views.The accommodation comprises;Ground Floor: Sitting Room, Dining Room, Kitchen, Front Hallway, Rear Hall/Utility Room, Pantry, Study/Double Bedroom.First Floor: Principal Bedroom, Two Double Bedrooms, Bathroom.Dalreoch Farmhouse has a delightful garden which wraps all the way around the house and has been carefully developed and maintained over a number of years The garden provides a myriad of colour and interest throughout the year, with pretty borders filled with flowers, a productive vegetable patch, a wildlife pond and mature trees which offer privacy and structure.Farm BuildingsDalreoch Farm benefits from a range of outbuildings which sit adjacent to the house. The traditional steading includes the old mill, a game larder and workshops with two stables while there is also a more modern lean to shed and cattle reed. The outbuildings provide an opportunity for development or to be used as they currently are depending on a potential purchasers wishes.The LandDalreoch Farm extends to approximately 22.41 acres (9.07 ha) in total and is a single ring fenced unit. The land rises from approximately 250 metres above sea level to 280 metres above sea level and is gently sloping. The land is down to permanent pasture and is split into 4 paddocks that wrap around the back of the house and outbuildings. The paddocks are a good practical size and are well fenced and benefit from shelter provided by the surrounding forestry. The land at Dalreoch Farm has been carefully managed to provide a haven for wildlife through practices such as controlled grazing. Of particular note is the paddock immediately to the south of the steading which is extremely botanically rich with an abundance of native flora present. This paddock is due to be listed as a Local Biodiversity Site by Perth and Kinross Council.