Knaps

Newmachar, Aberdeen, Aberdeenshire, AB21 0QJ

Offers Over £580,000

12.73 acres

Bedroom Count icon 5

Reception Count icon 2

Bathroom Count icon 3

  • 2 reception rooms. 5 bedrooms
  • Beautiful garden grounds
  • Modern multi-purpose agricultural shed
  • Around 10.17 acres of land
  • Private countryside location
  • Around 12.73 acres in total

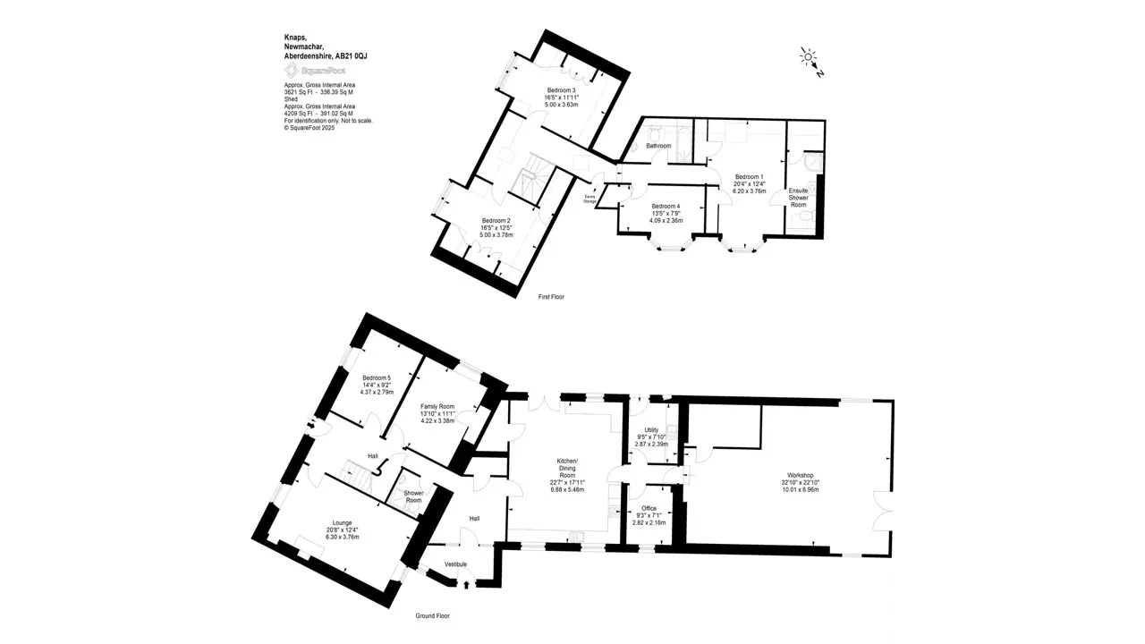
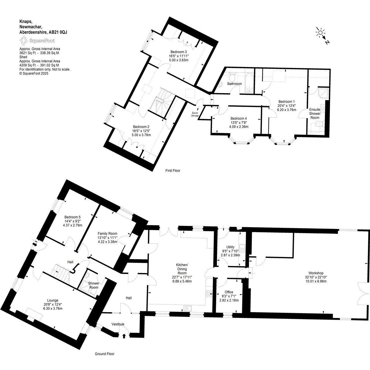
Knaps has an idyllic countryside location, close to the village of Newmachar, with beautiful open views and a feeling of space and privacy. Knaps is approached by the private track and there is a traditional detached 5 bedroom farmhouse with beautiful garden grounds and a superb multi-purpose agricultural shed. The land surrounds the property entirely and extends to around 10.17 acres (4.11 hectares), and has been sown to grass very recently with good fencing. For those with equestrian interests, Knaps would work exceptionally well given the superb outbuilding which could accommodate a large amount of stabling. The entire land & outdoor space at Knaps really does create endless opportunities and flexibility for any potential buyer to create their own wonderful countryside lifestyle.Knaps Farmhouse is a traditional stone built farmhouse with a south west aspect and beautiful tended garden grounds. The property has been exceptionally well maintained by the present owners including a considerable extension, joining the original farmhouse to a traditional steading in 2009, to greatly increase the accommodation and size of the home. The accommodation over two floors comprises an entrance vestibule and entrance hall. Continue to the left into the original farmhouse where you will find the main lounge, overlooking the garden and a wood burning stove. The family room has a side aspect and could easily be a 6th bedroom if required. Also overlooking the front gardens is the fifth double bedroom, which is an exceptionally spacious room. Also located here is the modern shower room. Returning to the entrance hall continue right into the new part of the home where you will find the dining kitchen. This is a wonderful room offering a ‘modern country kitchen’ with high quality units & plenty worktop space. There is space to have both dining & family seating and french doors open out to garden patio. A great feature of this space is the walk-in kitchen larder, being a very useful space. Continuing through, a home office room is to one side and a utility room, with garden access, to the other. Lastly on the ground floor, is an extremely useful and handy workshop space which could have various uses. Double external doors give access outside and this room houses the water filtration system.On the first floor there is a bright open landing with two sky light window drawing in light. There are two equally spacious double bedrooms with built in storage, both enjoying an outlook to the front overlooking the surrounding countryside. Further down the hall is the main family bathroom and the fourth bedroom with built in cupboard. Completing the accommodation is the principle bedroom with excellent storage and a generous ensuite shower room.ACCOMMODATIONGround Floor: Vestibule, entrance hall, lounge, family room, bedroom 5 & shower room. Dining kitchen with larder, utility room, home office & workshop.First Floor: Master bedroom with ensuite shower room, double bedroom 2, double bedroom 3 & bedroom 4. Family bathroom.GARDEN GROUNDSKnaps sits in garden grounds that have been beautifully created & designed by the present owners. A sheltered patio lies closest to the house, ideal for garden furniture, with a path leading to the kitchen garden area. Here there are fenced vegetable beds, a greenhouse and polytunnel with raised beds and irrigation system inside. A side gate leads to the agricultural shed.The rolling grass lawn continues round the side to the front of the original cottage bound by mature neat hedging. There is a scattering of mature & successful fruit trees, including apple & plum, and offers a wonderful outdoor space for family and children to enjoy. Plenty parking is available to the front of Knaps Farmhouse.LAND & OUTBUILDINGSKnaps sits in around 12.73 acres in total. Around 10.17 acres of land have been sown to grass and is mostly fenced.The modern 30m x 12.8m multi-purpose agricultural shed was added in 2010. Ideal for multiple uses, this shed could easily accommodate horse stabling if required.SERVICES, COUNCIL TAX AND ENERGY PERFORMANCE CERTIFICATE(S)Water PrivateElectricity MainsDrainage Septic TankTenure FreeholdHeating Oil CHCouncil Tax Band BEPC Band CPlease note the council tax band could be subject to change.LOCATIONKnaps is located amongst the beautiful Aberdeenshire countryside northwest of Aberdeen. The closest village of Newmacher is only 5 minutes drive away and provides excellent day-to-day amenities including shops, chemist, sport centre, library, post office and thriving community with numerous clubs and societies. Schooling is provided at Newmachar Primary School whilst secondary education is catered for at Dyce Academy.Lying approximately 10 miles to the South-East is the city of Aberdeen which offers endless art, culture and events including His Majesty’s Theatre and the recently re-opened Aberdeen Art Gallery, which has undergone a once-in-a-life-time £30m transformation. There are restaurants, bars, coffee shops and major national retailers together with a railway and bus station. Private education is available in Aberdeen at Robert Gordon’s College, St. Margaret’s school for Girls, Albyn School and the International School of Aberdeen.